- News
 - 73 views
 - disconnect switch, motor disconnect, motor disconnect switch
 

Expanding Applications with Our New 200A and 400A Motor Disconnects
We've introduced 200A and 400A UL 98 Disconnect Switches, taking safety, sustainability and performance to the next level. These higher amperage options expand the applications where these disconnects can be used and offer solutions for industries requiring robust and reliable switching for larger electrical loads.
The following is a comprehensive overview of these units.
Greater Sustainability and Safety
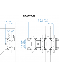
We designed the new 200A and 400A UL 98 Disconnect Switches with a focus on sustainability and safety. These switches are made from 100% recyclable plastic materials, an industry first that emphasizes our commitment to environmental responsibility without compromising performance.
In addition, each pole is equipped with a contact position check/condition inspection window. This feature improves safety during maintenance and inspection procedures in high-voltage electrical systems in mining and other industries. The windows enable operators to perform visual checks without opening panels, minimizing exposure to live electrical components and reducing the risk of arc flash. This feature also complies with safety regulations that require visual confirmation of disconnection.
Other features of these new disconnect switches include:
- Operator-independent actuation: The make/break operation of the switch functions independently of how fast the operator actuates it, ensuring consistent performance.
 - Modular configuration: The design is flexible, allowing for custom configurations of actuation orientation to meet various installation needs.
 - Impressive power capacity: These switches have a maximum horsepower rating of 300 HP at 600V AC, making them suitable for demanding industrial tasks.
 - UL Listed: The switches are UL listed (E506049).
 - Accessory options: Various accessories are available, including different shaft lengths (100 to 500 millimeters), handle options and auxiliary contacts.
 - Multiple configurations: Units are available in three-pole and four-pole configurations.
 - Short circuit protection: 100 kA withstand rating with appropriate Class J fuses.
 - Wire compatibility: Accommodates wire sizes from 2 AWG to 600 kcmil.
 
Expanded Industrial Applications
The 200A and 400A amperages are used in various industrial applications due to their ability to handle higher electrical loads. Applications for disconnects in this amperage range include:
- HVAC equipment
 - Food and beverage manufacturing
 - Pharmaceutical manufacturing
 - Maritime environments
 - Heavy traffic and industrial areas where reliable and durable equipment is essential
 
To learn more about our new 200A and 400A UL 98 Disconnect Switches, please visit our website.